GEBOUW C – VOOR COÖPERATIEVE CREATIE & DUURZAME INNOVATIE

Ruimtes

Ben je op zoek naar een dynamische werkplek? Kom dan huren in Gebouw C!

Het maakt niet uit of je net met je onderneming gestart bent of al jaren aan de weg timmert.

Met de Incubator Duurzame Energie Alkmaar (IDEA), het Innovatie Lab en andere vernieuwende bedrijven om de hoek bevind je je in goed gezelschap. Doordat er een energieke cultuur van open innovatie heerst in Gebouw C, kun je als huurder gebruik maken van alle kennis en kunde van de andere huurders en van de prettige faciliteiten die het gebouw te bieden heeft.

Gebouw C inspireert!

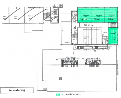
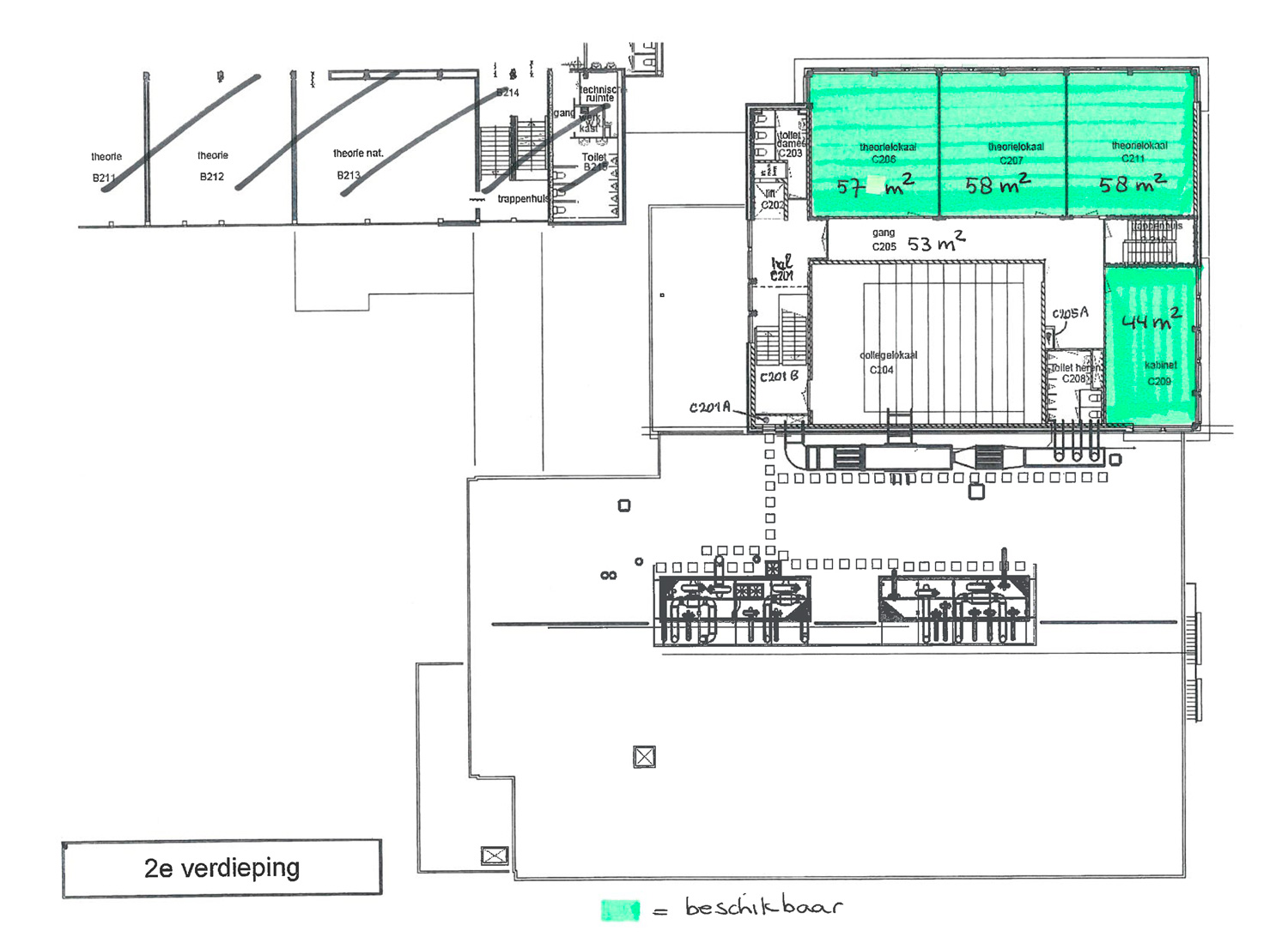
Beschikbare ruimtes

De ruimtes in Gebouw C zijn naar eigen inzicht in te delen en aan te passen. Je kunt hier je creativiteit de vrije loop laten en jouw ideale werkplek creëren. Met een zeer aantrekkelijke huurprijs biedt Gebouw C je de mogelijkheid om je bedrijf op te starten of verder te laten groeien.

Faciliteiten

  • Gezamenlijke centrale hal te gebruiken voor events en bijeenkomsten
  • Een fijne buitenruimte
  • Gratis parkeergelegenheid

Begane grond

Eerste verdieping

Tweede verdieping

© Copyright - Gebouw-C - Website: JoStudio